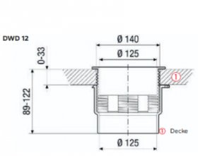
Maico Decken-/Wanddurchführung DWD 12
- Decken-/Wanddurchführung zur einfachen Montage von Tellerventilen in abgehängten Decken, aber auch für den universellen Einsatz.
- Werkzeugloser Einbau.
- Universell im Spannbereich von 0 - 33 mm einbaubar.
Montagehinweise
- Bohrung mit ca. 140 mm Durchmesser mittels Lochsäge.
- Schraubgewinde eindrehen und handfest anziehen.
- Einstecken von Kunststoff-Tellerventil und der entsprechenden Lüftungsleitung.
https://www.maico-ventilatoren.com/produkte/p/dwd-g67793/dwd-12-p133422
© Maico Ventilatoren
Angaben zur Produktsicherheit
Herstellerinformationen:
Maico
, ,
| Produkteigenschaft |
Wert |
| Inhalt: |
1,00 Stück
|
Es gibt noch keine Bewertungen.
Maico Elektroapparate-Fabrik GmbH
Steinbeisstraße 20
78056 Villingen-Schwenningen
info@maico.de